

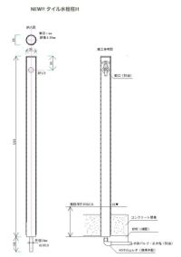
玄関やお庭にピッタリのタイルの流し台!
モルタル下地にモザイクタイルを張ったタイル流し台。
すべて職人が丹精を込めて製作している1点ものです。
潮風があたる場所や、気候条件が悪い外部でのご使用にも向いています。
手作りのためタイル目地は多少貫乳が入っております。
重たいので移動や設置は注意して行って下さい。
運搬は細心の注意をはらっておりますが、運送等で割れた場合は代品をお送りいたします。
その際は受注生産となりますので、一ヶ月程お時間をいただく場合がございます。
またすべて手作りのため、全く同じもののご用意はいたしかねますのでご了承ください。





